PROSPERITY
RESIDENCE

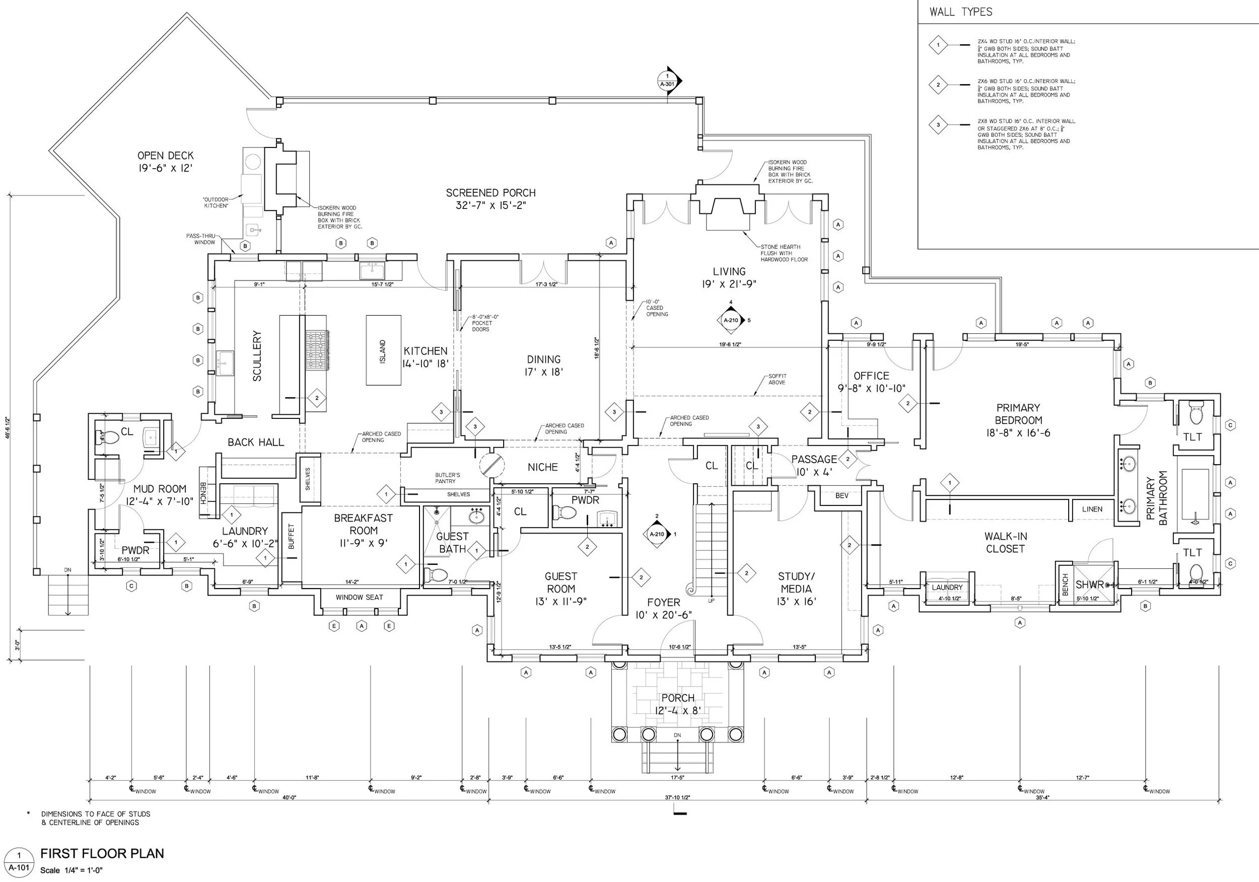
A ground-up home organized around light, views, and practical routines. Public spaces open to porches and a screened outdoor room; private rooms are tucked for quiet. A straightforward structural rhythm keeps spans efficient, while regional materials and deep overhangs handle weather gracefully. Systems and envelope target comfort and sensible operating costs. Plan, area, and status.