Marion County Library

Marion, SC

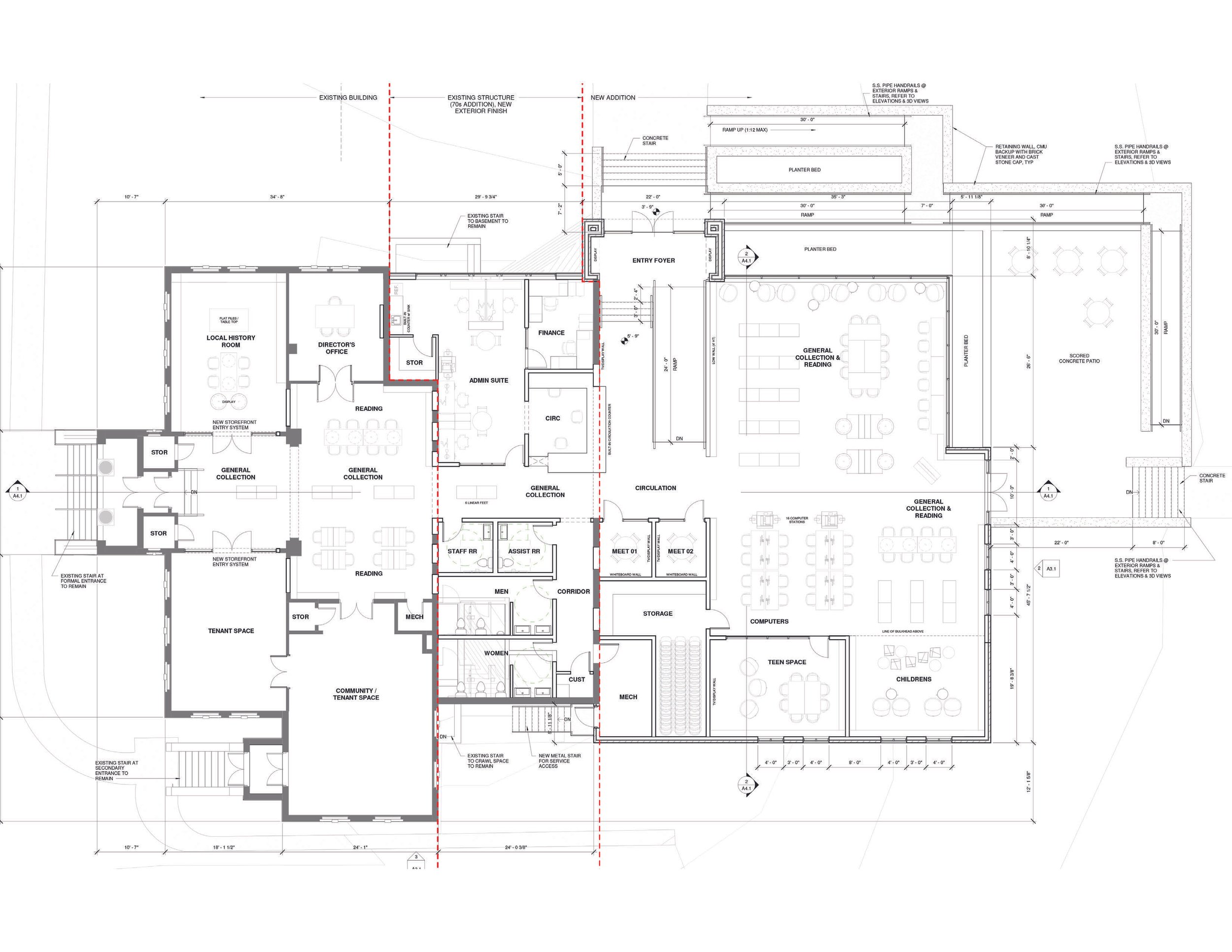
An exciting renovation will restore the historic Carnegie building of 1905, repurpose an addition of 1974, and add a new wing to accommodate current and future library programs.  The historic restoration work will be done to the standards of the State Historic Preservation Office (SHPO) and National Park Service (NPS) to allow the Owner to utilize historic tax credits.

The building expansion will locate the main entrance of the library along Godbold Street, allowing the library to interact more with the beautiful adjacent city park while maintaining the historic classical view from Main Street. The expansion will make the entire facility accessible and make cutting edge technology available to patrons. A new children’s area as well as young adult reading spaces will further engage the community. A large multipurpose community reading room will take advantage of the building’s park setting and allow for ample natural light and beautiful views. The new footprint of the building and its connection to the adjacent green space will create an exciting meeting place in the heart of the historic downtown.